CODINGCLASSEURS WEKA ★ Comment exploiter toutes les ressources et augmenter les performances de votre AMSTRAD CPC ★

12/3.2 - Le lecteur de disquettes FD1Coding Classeurs Weka
12/3.2 - Le lecteur de disquettes FD1

Répétons-le, les interventions au niveau de la mécanique et de la carte électronique principale d'un lecteur de disquettes (quel qu'il soit) ne sont pas à la portée de l'amateur, mais réservées à des ateliers très spécialisés possédant l'outillage et l'instrumentation indispensables. Cependant, le lecteur AMSTRAD FD1 contient également des circuits beaucoup plus simples, notamment d'alimentation, qu'il n'est pas interdit de dépanner si le besoin s'en fait sentir !

La figure 1 reproduit l'éclaté de ce lecteur autonome, ainsi que du boîtier d'interface DDI1 contenant le contrôleur nécessaire pour connecter le FD1 aux CPC 464 : il n'en faut pas davantage pour pouvoir lever le capot en toute sécurité.

Le schéma du contrôleur se trouve à la page 5 de la partie 2, chapitre 3.5 : d'un point de vue maintenance, on doit le considérer comme faisant partie intégrante de l'unité centrale, ce qui est d'ailleurs le cas sur les CPC à lecteur de disquettes incorporé pour lesquels le FD1 joue le rôle de lecteur additionnel. En complément, la figure 2 fournit le plan d'implantation de son circuit imprimé.

La figure 3 reproduit donc uniquement les schémas du FD1 proprement dit : à gauche, celui de la carte principale indissociable de la mécanique et donc en principe intouchable, en bas à droite celui de l'alimentation secteur totalement indépendante de celle de l'unité centrale. S'y ajoute une carte relais ne jouant qu'un simple rôle de transition entre connecteurs de types différents mais pouvant fort bien, à la longue, être le siège de mauvais contacts.

/im3/weka1232b1.jpg
Fig. 1 : Eclaté général (Document Amstrad).

/im3/weka1232c1.jpg
Fig 1 : Eclaté général (suite)

N°  Description
  1. Coquille supérieure boîtier
  2. Refroidisseur
  3. Transfo secteur
  4. Connecteur
  5. Lecteur
  6. Equerre
  7. Interrupteur
  8. Coquille inférieure boîtier
  9. Boîtier contrôleur
  10. Connecteur
  11. Couvercle contrôleur
  12. Moteur pas à pas
  13. Ensemble tête
  14. Moteur de cabestan
  15. Courroie

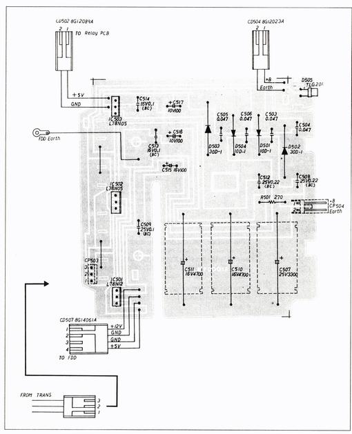
Côté secteur, on rencontre un fusible (1A temporisé, valeur à respecter scrupuleusement et à ne surtout pas augmenter), un interrupteur, un filtre antiparasites et le transformateur à disjoncteur thermique incorporé : en cas d'échauffement excessif, prévoir un refroidissement complet avant tout contrôle du primaire.

Côté basse tension, un redresseur fort classique précède trois régulateurs indépendants, pouvant bien sûr tomber en panne séparément ou ensemble.

La figure 4 montre que cette alimentation est câblée sur deux circuits imprimés distincts : un pour la partie secteur, sur lequel il faudra veiller à ne remplacer les composants que par des types assurant au moins la même sécurité, et une carte basse tension rassemblant redresseur et régulateurs.

L'interconnexion fait largement appel à des connecteurs, ce qui facilite la maintenance mais peut favoriser les mauvais contacts intermittents.

La figure 5, enfin, décrit la plaquette relais assurant le transit des connexions vers le connecteur normalisé dont est équipé le lecteur proprement dit. C'est à ce niveau que l'on pourra facilement intervenir pour tester rapidement le fonctionnement du moteur d'entraînement et du moteur pas à pas de la tête, en appliquant des niveaux logiques externes au lecteur préalablement débranché (voir le rôle des signaux en Partie 8, chapitre 1.2).

/im3/weka1232f1.jpg
Fig. 4 : Plans des cartes d'alimentation (Document Amstrad).

/im3/weka1232g.jpg
Fig. 4 : Plans des cartes d'alimentation (suite).

im3/weka1232a1.jpg
Fig. 5 : La carte relais (Document Amstrad)

Pins connection

1~~33. GND
2, 4, 6, 14. +5 V
8. INDEX
10. DRIVE SELECT 0
12. DRIVE SELECT 1
16. MOTOR ON
18. DIRECTION SELECT
20. STEP
22. WRITE DATA
24. WRITE GATE
26. TRACK 0 0
28. WRITE PROTECT
30. READ DATA
32. SIDE 1 SELECT
34. READY

Pins connection :

1 ~25. GND (masse)
2. INDEX (détecteur de trou d'index)
4. DRIVE SELECT 0 \ (sélection lecteur 0 ou 1 )
6. DRIVE SELECT 1 /
8. MOTOR ON (mise en marche moteur)
10. DIRECTION SELECT Commande de sens de déplacement de la tête)
12. STEP (impulsions de déplacement de la tête)
14. WRITE DATA (données à écrire)
16. WRITE GATE (validation données à écrire)
18. TRACK 0 0 (détecteur de piste zéro)
20. WRITE PROTECT (détecteur de disquette protégée)
22. READ DATA (données lues)
24. SIDE 1 SELECT (sélection de face)
26. READY (prêt)

/im3/weka1232d1.jpg
Fig. 2 : Plan de la carte « contrôleur » (Document Amstrad).

/im3/weka1232e1.jpg
Fig. 3 : Schéma électronique du lecteur (Document Amstrad).

Page précédente : 12/2 - Maintenance des unités centrales
Je participe au site:

» Vous avez remarqué une erreur dans ce texte ?
» Aidez-nous à améliorer cette page : en nous contactant via le forum ou par email.

CPCrulez[Content Management System] v8.732-desktop/c
Page créée en 463 millisecondes et consultée 1482 fois

L'Amstrad CPC est une machine 8 bits à base d'un Z80 à 4MHz. Le premier de la gamme fut le CPC 464 en 1984, équipé d'un lecteur de cassettes intégré il se plaçait en concurrent  du Commodore C64 beaucoup plus compliqué à utiliser et plus cher. Ce fut un réel succès et sorti cette même années le CPC 664 équipé d'un lecteur de disquettes trois pouces intégré. Sa vie fut de courte durée puisqu'en 1985 il fut remplacé par le CPC 6128 qui était plus compact, plus soigné et surtout qui avait 128Ko de RAM au lieu de 64Ko.